- Kyoto Nijo Guest House HoshiIke villaKyoto7.0
- trive osu west 最大9名宿泊可能 1台無料駐車場付きMinami-sotoborichō9.2
- Guest House Isehutami - Vacation STAY 89326vIse8.7
- 白浜ホープヒルズ G-60Shirahama8.9
- HAT Huruichi, near from Nara park, more than 5 parking space, 築3年の一軒家,駐車場5台以上可,グループでの宿泊にNara9.3
- 谷町君 HOTEL 恵美須町72Osaka9.0
- CentralOsaka8.5
- KUROMON RoyalOsaka8.1
- Kyoto Nijo Guest House IchiKawa villaKyoto4.2
- Guest House Fukuchan - Vacation STAY 34470vKaiyo
- APA Hotel Namba Shinsaibashi HigashiOsaka8.0
- Sora Niwa Terrace Kyoto9.2Kyoto
- FU-RIN - Vacation STAY 12343Osaka
- Cafe panorama - Vacation STAY 96734vEsumi9.1
- KyoMachiya StarsKyoto7.9
- Daiwa Roynet Hotel KOBE-SANNOMIYA PREMIER8.8Kobe
- Shiki Homes SENKyoto8.2
- FU-RIN 3mins walk to station/6mins NANBA/16mins UMEDAOsaka8.3
- 白浜ホープヒルズ G-63Shirahama9.2
- EikiKyoto9.3
- Guest house Nagi - Vacation STAY 21489vKanayama7.2
- trive kamejima 古民家 亀島駅徒歩1分 名古屋駅まで1駅Noritake-shimmachi8.3
- Ken House OsakaTakatsuki8.8
- RakutenSTAY x Shamaison Osaka Dekijima - 106Osaka7.7
- Onyado Nono Osaka Yodoyabashi8.9Osaka
- GYPSY TAKASHIMAKatsuno8.2
- ホテル隠宿 凛 Rin7.2Ogaki
- ROKKONOMADKobe9.4
- Guest house Daikoku - Vacation STAY 97010vKyoto9.7
- Kyoto Kitaku Guest House JoTaku villaKyoto8.8
- -1日1組限定-犬と泊まれる古民家宿 wanco minca わんこみんかMinamiawaji9.4
- Guest House Fukuchan - Vacation STAY 34483vKaiyo8.6
- 城崎温泉 小宿 紬 tsumugiToyooka8.2
- Sumiyoshi Marie - Vacation STAY 12161Osaka8.0
- 白浜ホープヒルズ G-62Kanayama8.9
- RakutenSTAY x Shamaison Osaka Dekijima - Vacation STAY 12315Osaka
- Guest House Isehutami - Vacation STAY 89364vIse9.5
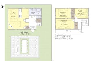
- Awaji Garden House in ShinmuraSumoto8.1
- 惠美 通天閣まで徒歩5分天王寺動物園まで徒歩6分 リニューアル戸建一棟貸しOsaka8.3
- 高野山 宿坊 普門院 -Koyasan Shukubo Fumonin-8.6Koyasan
- Fine dei risultati -