Appartement spacieux à Valmorel, 11 couchages, 4 Pièces, casier à skis - FR-1-291-749

Eccezionale 9.5 (2 pareri)
Residence
Prezzo non disponibile
Descrizione
Appartement spacieux à Valmorel, 11 couchages, 4 Pièces, casier à skis - FR-1-291-749 offre alloggio a Valmorel, a 44 km da Col de la Madeleine. Questo appartamento a 3 stelle è a 38 km da Villaggio Olimpico di Albertville.
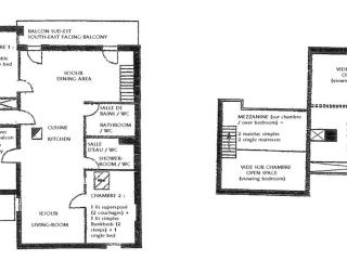
Questo appartamento presenta 3 camere da letto, una cucina con frigorifero e lavastoviglie e 2 bagni con doccia e vasca da bagno. Tra i servizi disponibili troverete una TV.
Aeroporto di Chambéry-Savoie si trova a 96 km dalla struttura.
Posizione
30 Bourg Morel - Hameau Du Bourg -73260 Valmorel
Date del soggiorno
Disponibilità con
--------- ----------